Plan d’architecture
Deux échelles sont utilisées et suffisent à satisfaire les besoins du maitre d’ouvrage (propriétaire privé, maire…) ou maitre d’œuvre (généralement l’architecte ou l’ingénieur structure)
– Le plan au 1/100è (1 cm = 1 m) est un plan assez épuré, qui comporte une cotation planimétrique et altimétrique sommaire, il n’y a pas de détail
– Le plan au 1/50è (2 cm = 1 m) est recommandé par tous les professionnels désireux d’avoir un plan très précis et riche d’information.
Plans d’intérieurs
Le plan d’intérieur au 1/100è (1 cm = 1 m) est un plan qui est annexé à un acte de vente, à un bail ou tout autre document contractuel
Ce plan est produit en cas de vente, de location ou pour une copropriété.
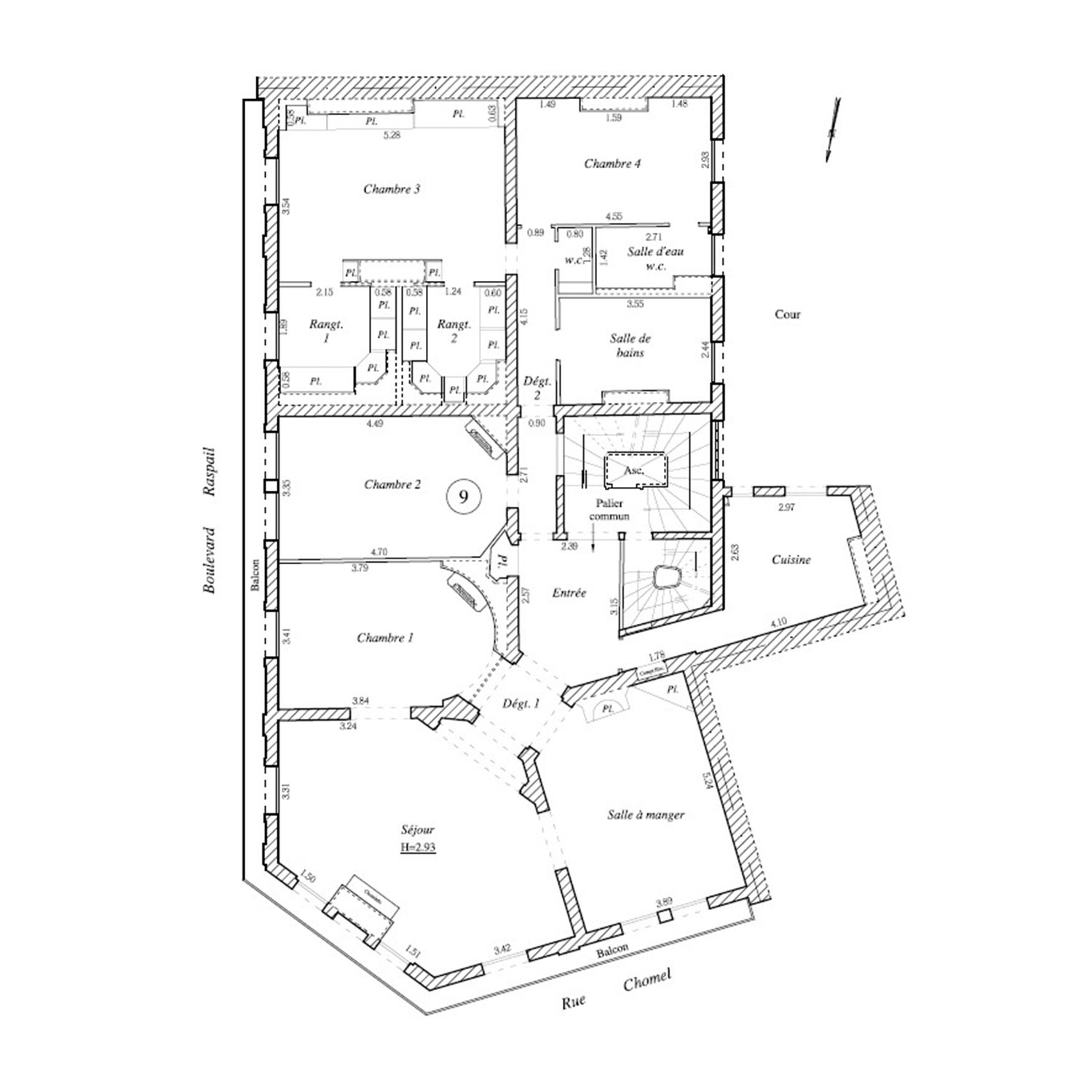
Le plan d’intérieur au 1/50è (2 cm = 1 m) est un plan d’une grande précision, il est riche d’information et est produit à la demande d’architectes, de bureaux d’études ou autres professionnels du BTP.
Ce plan est un préalable incontournable à tous vos projets d’aménagement, de rénovation ou restructuration partielle ou totale et aussi d’extension ou de surélévation.
Plan de façade
Qu’il s’agisse d’un simple changement de la devanture d’une boutique ou d’une surélévation par exemple, l’agrandissement d’un ouvrant ou le changement de pente d’une toiture.
Ce plan est produit pour toute demande de Permis de Construire ou Demande Préalable.
Plan de coupe
Ce plan de coupe est un plan d’élévation transversal, c’est à dire une tranche du bâtiment dans sa profondeur ou sa largeur.
Ce plan est généralement produit en complément des plans d’intérieurs car il permet à la Maitrise d’Œuvre de mieux comprendre comment s’exercent les forces verticales et horizontales et de connaitre précisément les épaisseurs des planchers.
Plan de figure de mur (héberge*)
Il s’agit d’un plan d’élévation du mur séparatif dessiné depuis le niveau le plus bas (sous-sol) jusqu’au point le plus haut (toiture) et mettant en évidence le pourtour du bâtiment de la parcelle concernée mais aussi, d’une autre couleur ou d’un trait bien distinct le contour du bâtiment voisin.
* héberge définition : ligne qui correspond à la limite de mitoyenneté d’un mur séparatif commun à deux constructions accolées ou adossées de hauteur inégale. Nota : Le plan des héberges ne peut être réalisé que par un Géomètre-Expert DPLG, puisqu’il s’agira de délimiter la propriété foncière du mur séparatif.
Ce plan est produit pour toute demande de Permis de Construire généralement en cas d’une surélévation.
Plan de toiture
Il s’agit d’un plan qui représente principalement les sens des pentes et l’inclinaison des couvertures
Ce plan est produit pour toute demande de Permis de Construire ou Demande Préalable généralement en cas d’une surélévation totale ou partiel (création d’une lucarne par exemple) ou pour la pose d’ouvrant sur la couverture (type « fenêtre de toit »).
Néo-Perspective Géomètre
Jérémie Malawski
Néo-Perspective Géomètre
Jérémie Malawski
Néo-Perspective Géomètre
Jérémie Malawski
Néo-Perspective Géomètre
Jérémie Malawski
plandecoupe
Néo-Perspective Géomètre
Jérémie Malawski
Néo-Perspective Géomètre
Jérémie Malawski





